Haus der Artenvielfalt







Haus der Artenvielfalt
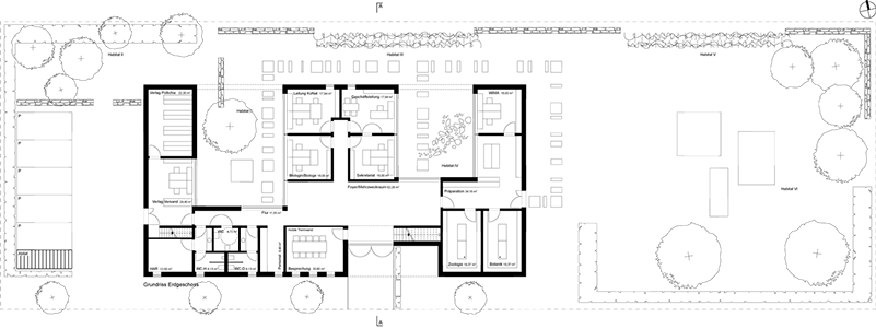
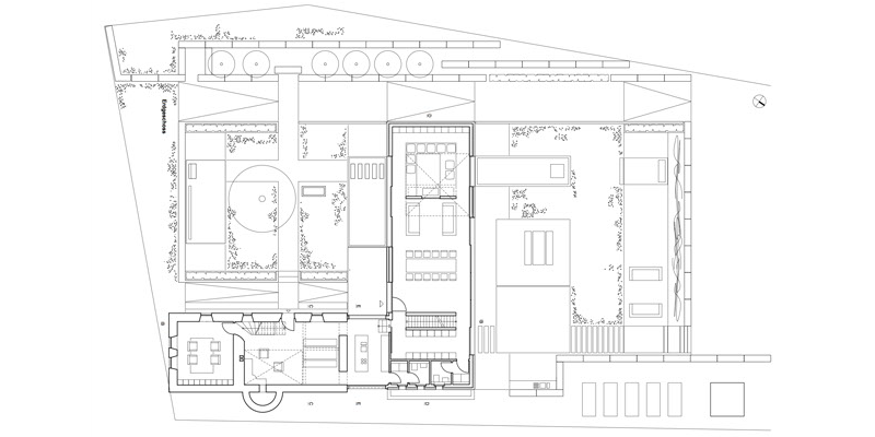
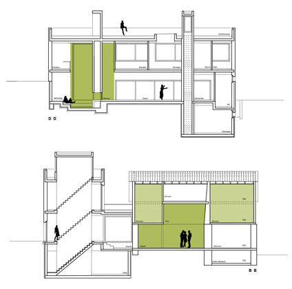
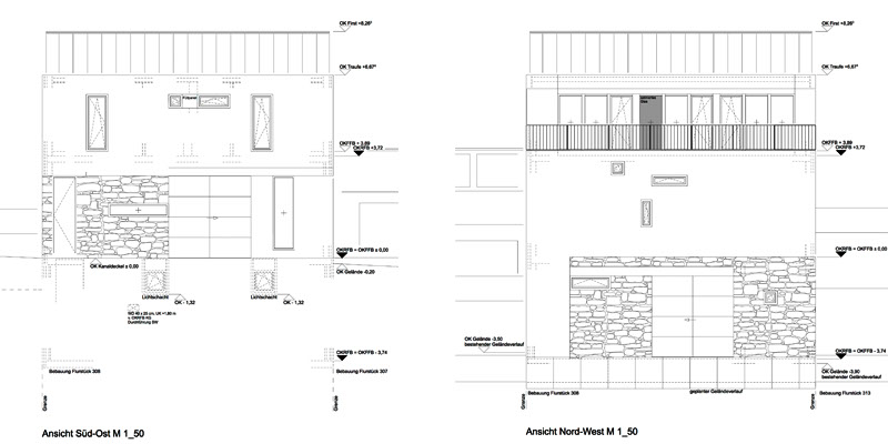
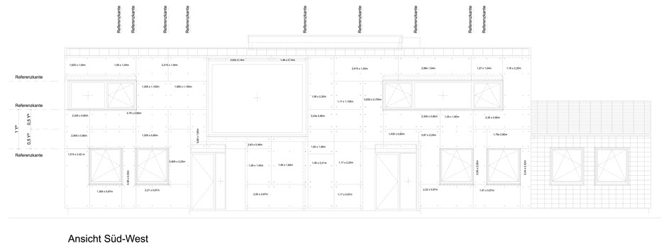
Das ‚Haus der Artenvielfalt’ der Georg von Neumayer Stiftung und POLLICHIA, Verein für Naturforschung und Landespflege, widmet sich der Naturforschung, dem Naturschutz sowie der Umweltbildung. Diese Aufgabengebiete werden in den Gebäudeteilen um die beiden Innenhöfe abgebildet und öffnen sich zum Lehr- und Lernpfad im Gebäudeinneren und in den Themengärten. Das seit der Gründung der POLLICHIA vor 175 Jahren stetig wachsende Archiv zeigt im Obergeschoss die übergeordnete Zielsetzung der Stiftung und des Vereines: die Bedeutung der Förderung der Naturforschung und der Landespflege sowie die Veröffentlichung naturwissenschaftlicher Erkenntnisse. Die nach Südosten orientierte Natursteinfasssade des Erdgeschosses dient der Wärmespeicherung, die versetzte Holzlamellenfassaden der Themenriegel als Lebensraum für Lebewesen. Die Energieversorgung erfolgt über geothermische Grundwasserbrunnen sowie über die Photovoltaikanlage auf dem Dach und in der Fassade.
<
>
Bischöfliches Cusanus-Gymnasium























Bischöfliches Cusanus-Gymnasium
Das Bischöfliche Cusanus-Gymnasium Koblenz ist ein dreizügiges Gymnasium in privater Trägerschaft des Bistums Trier.
Der Schulgemeinschaft fehlte ein ausreichend großer Versammlungsraum, der gleichsam verschiedene Aufgaben in unterschiedlichen Raumkonfigurationen zu leisten hatte. Die Sporthalle aus den 1970er Jahren erforderte eine technische und energetische Sanierung. Innerhalb der Bestandsgebäude war eine Neuordnung der Fachbereiche sowie die räumlich sinnvolle Zuordnung von Mittel- und Oberstufenräumen erforderlich. Ein Schülercafé und eine Kinderkrippe für Kinder des Kollegiums sollten das schulische Angebot ergänzen.
Die Lage der Stadtschule, zwischen zwei Straßen und angrenzender Blockbebauung sowie die zerklüftete Entwicklung der Erweiterungen erforderten eine intensive Auseinandersetzung mit den Räumen zwischen den einzelnen Gebäudeteilen. Diese Zwischenräume, gleichsam Freiraum, Erschließung und Pausenfläche auf unterschiedlichen Ebenen, waren wichtiges Bindeglied. Sie übernahmen als Mittler zwischen alt und neu, zwischen oben und unten und unter den Schülern eine wichtige Funktion des täglichen Austausches.
Gesamtbild
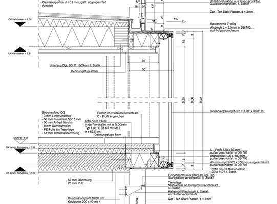
Mit der großen Schulerweiterung der 1970er Jahre wurden die unterschiedlichen Gebäude mit einer Aluminiumpaneelverkleidung versehen, für deren Gestaltung der Künstler Diether Domes verantwortlich zeichnete. Diese, in der Erscheinung ausdrucksstarke Fassadengestaltung war in der Ursprungsform für alle Gebäude vorgesehen. Aus Kostengründen wurde mit den letzten Baumaßnahmen an der Sporthalle Ende der 1970er Jahre auf deren Hülle verzichtet.
Im Rahmen der Untersuchungen zur Erweiterung der Schule und energetischen Sanierung der Sporthalle wurde ein Fassadenkonzept aus eloxierten Aluminiumrohren entwickelt, das einerseits die Farbigkeit der Paneel- verkleidung differenziert aufnimmt und andererseits in der Gestalt stark genug ist um die beiden Bauteile miteinander in Bezug zu setzten. Die aufgeständerte Sporthalle am Rande des Geländes mit deutlicher Orientierung in den öffentlichen Raum und der, in der Erde befindliche Versammlungsstätte im Innersten der Schule sollten durch eine gemeinsame Gestaltungsabsicht auch im Äusseren verbunden werden.
Energie
Die sanierte Sporthalle und der neue Versammlungsbau werden unabhängig vom restlichen Gebäudebestand mit regenerativen Ebergieträgern versorgt. Die Nutzung von Erdwärme mittels Grundwasserbohrungen als Wasser-Wasser-Wärmepumpe ergänzt die vorhandene solarthermische Anlage zur Brauchwassererwärmung der Duschanlagen. Zusätzlich wurde die Zu- und Abluftanlage der Sporthalle erneuert. Die neue Lüftungsanlage enthält einen Kreuzstromwärmetauscher zur Wärmerückgewinnung mit einem Wirkungsgrad von 72%. Der erzielte Jahresprimärenergiebedarf nach der Sanierung der Sporthalle in Höhe von Q’’p 184 kWh/(m2a) liegt mehr als 40% unter der gesetzlichen Anforderung an den modernisierten Altbau und sogar mehr als 17% unter der gesetzlichen Anforderung an einen Neubau. Der Energieverbrauch der Sporthalle konnte nach der Sanierung halbiert werden.
Neben der Sporthalle versorgen die beiden Wärmepumpen mit je 60 kW Leistung die Fußbodenheizung sowie die Zu- und Abluftanlage des neuen Mehrzweckbaues mit Wärme. Die Lüftungsanlage ist mit einem Rotationswärmetauscher zur Wärmerückgewinnung mit einem Wirkungsgrad von 80% ausgestattet. Der erzielte Jahresprimärenergiebedarf des neuen Gebäudes in Höhe von Q’’p 84,6 kWh/(m2a) liegt mehr als 37% unter der gesetzlichen Anforderung an einen Neubau. Damit tragen die sanierte Sporthalle und der Erweiterungsbau wesentlich zur Verbesserung der Gesamtenergiebilanz der Schule bei.
<
>
Einhaus















Einhaus
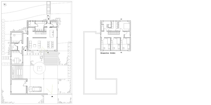
Typologisches Vorbild des Wohnhauses ist der einraumtiefe, quergeteilte Einheitshof, eine für den Ort in der Vulkaneifel typische Bauform, in der sich Wohnräume, Stallungen und Scheune unter einem Dach befanden. Die Konzeption des Gebäudes verfolgt das Ziel Primärbaustoffe, Douglasienholz, Schieferwacke und Moselschiefer zur Herstellung des Gebäudes aus der unmittelbaren Umgebung zu gewinnen und Sekundärbaustoffe aus dem großräumigen Umfeld zu verwenden. Das in Brettstapelbauweise errichtete Gebäude verwendet Holz aus dem gemeindeeigenen Forst, das im Ort gesägt und im Nachbarort zu den fertigen Bauelementen gewerkt wurde. Fenster und Türen wurden ebenfalls aus Douglasie gefertigt. Die Vormauerung besteht teilweise aus dem Abriss eines alten Gebäudes und ist um Schiefersteine aus einem noch offenen Steinbruch in der Nähe ergänzt. Die Dachdeckung als dynamische Rechteckdoppeldeckung ist aus dem Schieferbergwerk Mayen und wurde erstmals in dieser Deckart verlegt. Die Außenanlagen und Nebengebäude verwenden ebenfalls Materialien aus dem Abbruch eines Hauses und sind mit den Materialresten aus der Bruchsteinfassade und der Douglasienbretter ergänzt.
2
2
3
4
<
>
Hof




















Hof
Das Wohnhaus befindet sich in einem Dorf mit ca. 300 Einwohnern in unmittelbarer Nähe zum Nürburgring. Der ehemalige landwirtschaftliche Zweiseithof in zentraler Ortslage wurde durch einen Brand teilweise zerstört und erforderte eine Neuordnung. Ein baufälliger Stall und Teile der vom Brand zerstörten Scheune wurde abgerissen. Das Wohngebäude, ein Fachwerkhaus aus dem 19. Jahrhundert, wurde kernsaniert, wobei geschossübergreifend Raumbezüge die Bereiche in drei Ebenen gliedern. Die zentrale Küche ist Verbindungselement zum Erweiterungsbau, der die Position des ehemaligen Stalles und der Scheune aufnimmt. Im neuen Bauteil nimmt die zweigeschossige Sitzmulde an der Feuerstelle und der Treppenaufgang zur Dachterrasse die geschossübergreifenden Raumbezüge der ehemaligen Tenne auf.
2
3
<
>
Weingut










Weingut
Das Weingut einer jungen Winzerin an der Mittelmosel ist vor einigen Jahren neu entstanden und erforderte ein Gebäude zur Herstellung und Lagerung des Weines sowie zwei Ferienwohnungen mit Aussicht auf die Weinberge und die Marina des Moselortes. Zwischen dem Wohnhaus der Familie und dem Nachbargebäude befand sich in Hanglage eine 12 x 12 m kleine Weinbergsparzelle die von der Winzerin gekauft werden konnte und somit eine Verlagerung der Betriebsräume möglich machte. Die Topographie und Größe des Grundstückes erforderte die Gliederung der Funktionen in Fasslager, Flaschenlager und Kelter sowie Ferienunterkünfte in drei Ebenen.
2
<
>
Straßenmeisterei











Straßenmeisterei
Die Straßenmeisterei erforderte durch Umstrukturierung und Zusammenlegung administrativer Bereiche eine Erweiterung des Verwaltungsgebäudes aus den 1960er Jahren. Die erforderlichen Büroräume werden in Größe und Zuordnung durch mobile Trennwandanlagen flexibel nutzbar und können so auf veränderliche Randbedingungen in zukünftigen Strukturen einfach reagieren. Die Verwaltungsräume werden um einen Besprechungs- und Pausenbereich ergänzt.
<
>
Hakenhof











Hakenhof
Das Haus in der Eifel sollte neben dem Wohnen neutrale Bereiche ausbilden, die, abhängig von der Lebenssituation des jungen Paares, verschiedene Nutzungen ermöglichen. Diese Bereiche sollten der Situation entsprechend als Büro und Praxis, als auch zu einem späteren Zeitpunkt als Ferienappartement, Kinderwohnung oder altengerechte Wohnung genutzt werden. Typologisches Vorbild für diese nutzungsneutralen Bereiche waren die in dem Eifeldorf vorkommenden Hakenhöfe, die neben den Hauptnutzungen Wohnhaus, Stall und Scheune über Remisen, Holzschuppen und Kleinviehställe verfügten, die im Wandel der Zeit ebenfalls unterschiedlich genutzt wurden.
<
>
Festung Ehrenbreitstein





Wettbewerb 2. Preis
Wettbewerb 2. Preis
Wettbewerb 2. Preis
Wettbewerb 2. Preis
Wettbewerb 2. Preis
<
>
Domsingschule St. Paulin



Wettbewerb 2. Preis
Wettbewerb 2. Preis
Wettbewerb 2. Preis
<
>
Pfarrheim St. Bonifatius

Wettbewerb 1. Preis
Pfarrheim St. Maximin



Wettbewerb 1. Preis
Wettbewerb 1. Preis
Wettbewerb 1. Preis
<
>
Fachhochschule Mainz





Wettbewerb Ankauf
Wettbewerb Ankauf
Wettbewerb Ankauf
Wettbewerb Ankauf
Wettbewerb Ankauf
<
>